The One Nai Harn apartment in Phuket, Thailand.

The One Nai Harn Apartment project in Phuket, Thailand

In February 2026, Starjoy successfully completed a large-scale furniture supply project for The One Nai Harn Apartment in Phuket, Thailand. This project was delivered on time, with high-quality, custom furniture designed to withstand the tropical climate. Our team ensured smooth coordination from production to installation, meeting both aesthetic and functional requirements. This project highlights our ability to handle large international orders with precision and efficiency.

Phuket, Thailand
Date: Tuesday, February 10, 2026
Product: beds, dressing chair, dressing table, Wardrobe, bedside cupboard, cabinet, coffee table, sofa bed, barstool.
QTY: 1495 sets
Get free design guide

01

Drawings Analysis

Before moving forward with production, our design team ensures that every aspect of the project is thoroughly planned, including the creation of detailed drawings.

  •  
    • Internal review: Our design team conducts an in-depth review of the drawings to confirm that space dimensions, furniture placement, and layout meet the specific requirements for the project.

    •  
    • Client collaboration: We hold discussions with clients to understand their functional and aesthetic needs for the space. This helps us tailor our designs to meet their unique vision.

    •  
    • Space optimization: We analyze the layout to maximize space utilization while ensuring comfort and easy access. This involves considering furniture arrangement, flow, and effective use of the available area.

    •  
    • Design validation: The visual aspect is thoroughly examined to ensure that the final design enhances the overall ambiance. We check material selections, colors, and finishes to match the desired look and feel.

    •  
    • Final approval: Once all adjustments are made, we present the finalized drawings to the client for confirmation. This approval marks the transition from design to production.

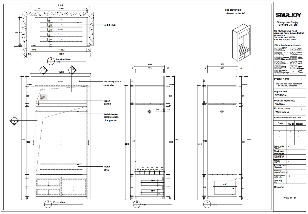
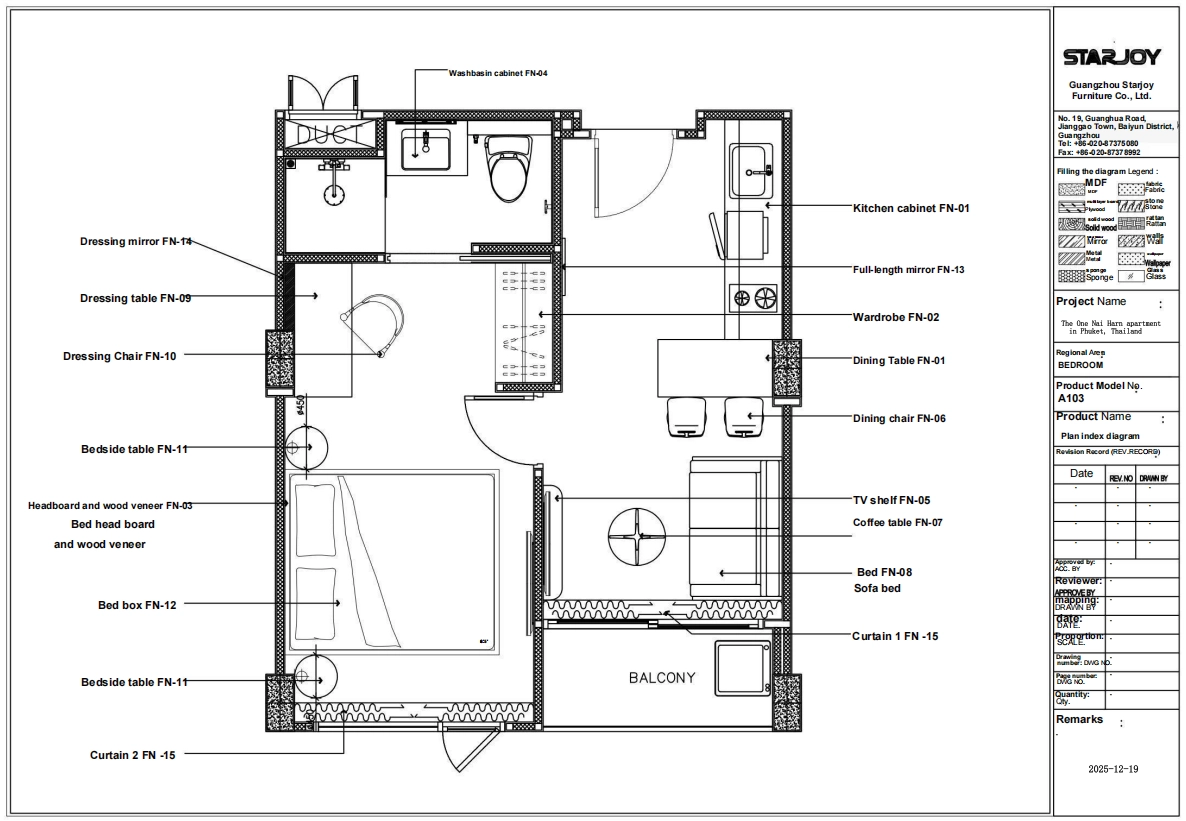
Drawing of The One Nai Harn apartment in Phuket, Thailand 1.
Drawing of The One Nai Harn apartment in Phuket, Thailand 2
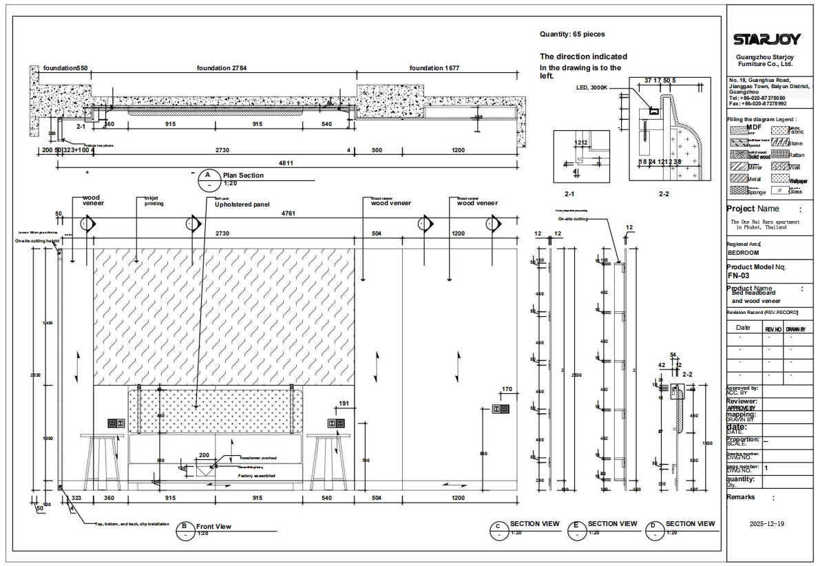
Technical drawing for Starjoy Furniture Co. Ltd. bed headboard, model FN-03, including plan, front, and section views with dimensions and material specifications. 3
Technical drawing of the FN-06 barstool, including plan, front, and side views with dimensions and material specifications 4
Technical drawing of a Starjoy FN-07 coffee table with dimensions and material specifications. 5
Technical drawing of the Starjoy Furniture FN-08 sofa bed, showing dimensions, materials, and construction details. 6
Technical drawing of a Starjoy FN-12 bed box, showing plan, front, and side views with dimensions. 7

02

Manufacturing and Quality Control

Each furniture item was manufactured using advanced machinery sourced from top manufacturers in Germany and Italy. This ensured precise cuts, perfect finishing, and the highest levels of quality for every piece produced.

 

Our production process included:

 

  • Material Selection: Premium materials were chosen to withstand humidity and high-traffic usage typical of a resort-style apartment.

  •  
  • Production Control: We used CNC machines for precise manufacturing and hand-finished all key components to ensure that every piece matched the specifications.

  •  
  • Quality Assurance: Our rigorous inspection process ensured that all pieces adhered to high durability and aesthetic standards, meeting both functional requirements and the client’s design preferences.

Fully automatic cutting machine 2

03

Packaging and Delivery

With a large order of 1,495 sets furniture, logistics played a crucial role in this project. We optimized the packaging and coordinated the shipment to ensure that all items were delivered in perfect condition, on time.

 

Our logistics team ensured:

 

  • Efficient packaging: All pieces were securely wrapped with moisture-resistant materials to prevent any damage during transport.

  •  
  • On-time delivery: The shipment was synchronized with the apartment’s interior construction schedule, ensuring the furniture arrived as needed.

  •  
  • Professional installation: Our expert installation team arrived on-site to set up the furniture, ensuring that each piece was assembled and positioned according to the project’s design specifications.

  •  

This seamless execution enabled The One Nai Harn Apartment to meet its timeline and open to satisfied residents, with high-quality furniture enhancing the overall living experience.

Furniture factory loading area with a red truck, forklift, and stacked boxes.

Product becomes a reality 

After thorough design and planning, our skilled team crafted each piece with precision and attention to detail. The result was durable, stylish furniture that met the client's needs, providing comfort and style for residents in the tropical climate of Phuket.

Interior of "The One" building lobby with modern design.
Upscale restaurant interior with mountain view.
Hotel Suite with Bedroom and Bathroom.
Interior view of a hotel suite living and dining area w.
Hotel suite with king-size bed and private balcony overlooking the sea.
Luxurious hotel suite with a king-size bed, living area, and bathroom with a bathtub.
Modern hotel room
Hotel room with a king-sized bed and ocean view.

Customized Service

Demand discussion
1. Needs Analysis
Have a preliminary meeting with the customer to understand their needs, style preferences and functional requirements.
Engineering drawings & 3D Rending
2. Drawing and Rendering
Conduct detailed drawing analysis and draw renderings so that customers can intuitively see the effect of the furniture in the space and provide feedback
Confirmation
3. Confirmation
Confirm the order details, including quantity, material, color and delivery time, and sign the contract.
Production
4. Production
Based on the confirmed order, start the production process to ensure that each link meets the design standards.
Installation guidance
5. Installation and After-Sales Service
Provide professional installation services to ensure that the furniture is placed and used correctly.
Tags

Explore more success stories

Wyndham Hotel in Massachusetts,USA

Starjoy Hotel Furniture for Wyndham Hotels in Massachusetts, USA

In February 2026, Starjoy successfully completed a 1,304-set custom hotel furniture project for a Wyndham hotel in Massachusetts, USA. The project covered guestroom beds, ottomans, bedside cupboards, desks, TV cabinets, coffee tables, wardrobes, bathroom vanities, and sofas—delivered with full compliance to U.S. quality standards and on-time execution. It is covering key functional areas of guest rooms and public spaces.

This project demonstrates our capability as an international hotel furniture manufacturer to meet North American market standards while ensuring design consistency, structural durability, and large-volume production efficiency.

Starjoy Hotel Furniture for Wyndham Hotels in Massachusetts, USA
Homewood Suites by Hilton Custom Furniture Project (3)

Homewood Suites by Hilton Custom Furniture Project

We were excited to work with Homewood Suites by Hilton in Toronto, Canada, on a comprehensive custom furniture project tailored for their extended-stay suites. The objective was to create functional, stylish, and space-efficient furniture that enhanced the suite experience while ensuring comfort for long-term guests.

Homewood Suites by Hilton Custom Furniture Project
Hampton by Hilton

Malaysia Hampton by Hilton Custom Furniture Project

We were privileged to partner with Hampton by Hilton in Kuala Lumpur, Malaysia, for a large-scale custom furniture project. The hotel sought to provide guests with a welcoming, modern environment while upholding the brand’s emphasis on comfort and durability. 

Malaysia Hampton by Hilton Custom Furniture Project
t01b18a5421aeae79bb1

Custom Furniture for Marriott Hotel in United Arab Emirates

We were honored to collaborate with Marriott Hotels on a high-end furniture project that spanned several months, from initial concept to final delivery. The goal was to deliver elegant, custom-made furniture pieces that aligned with Marriott's premium standards. 

Custom Furniture for Marriott Hotel in United Arab Emirates

Get Hotel Furniture Customization Solution

We strive to provide the most thoughtful service, excellent quality and value to every customer who customizes hotel furniture from STARJOY.

If you have any questions about your order, please contact us.

Name must not exceed 100 characters.
Invalid email format or length exceeds 100 characters. Please re-enter.
Please enter a valid phone number!
Company must not exceed 150 characters.
Please select Project Type
Content must not exceed 3000 characters.

Rest assured that your privacy is important to us, and all information provided will be handled with the utmost confidentiality.

Contact customer service

Send My Request

Hi,
If you are interested in our hotel public area, guest room or building venues, please send me a message for the best quote and product information.

×
Name must not exceed 100 characters.
Invalid email format or length exceeds 100 characters. Please re-enter.
Please enter a valid phone number!
Company must not exceed 150 characters.
Please select Project Type
Content must not exceed 3000 characters.