Amari hotel

Starjoy Hotel Furniture Project for Amari Hotel Johor Bahru in Malaysia

Starjoy Hotel Furniture successfully signed and completed a custom hotel furniture supply project for Amari Hotel Johor Bahru, Malaysia. This project involved the production and delivery of 242 sets of hotel furniture, tailored to meet the design standards and operational requirements of an international hotel brand in Southeast Asia.

Johor Bahru, Malaysia
Date: Wednesday, April 20, 2022
Product: modular bed, stools, bedside cupboard, desks, TV cabinet, coffee tables and wardrobe
QTY: 242 sets
Get free design guide

01

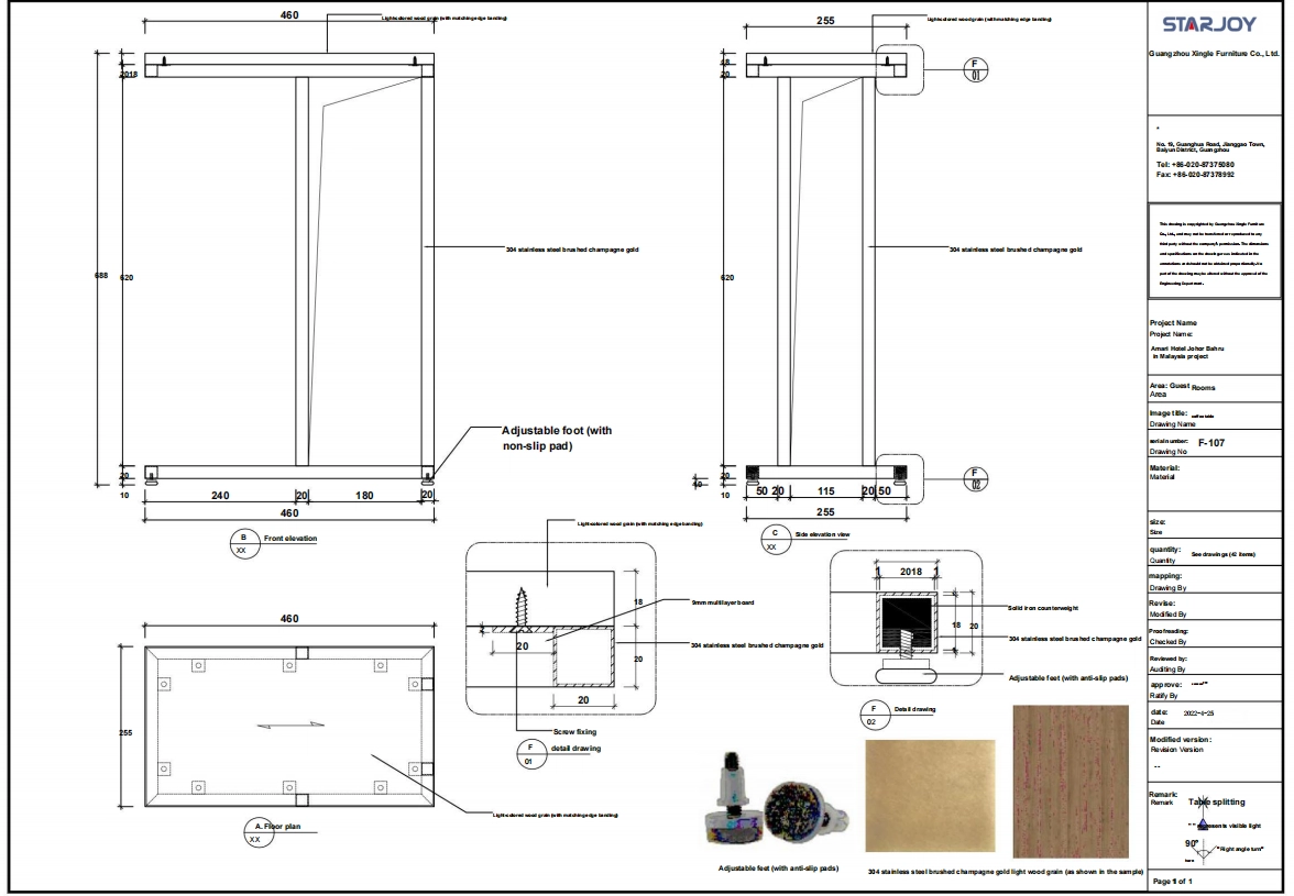
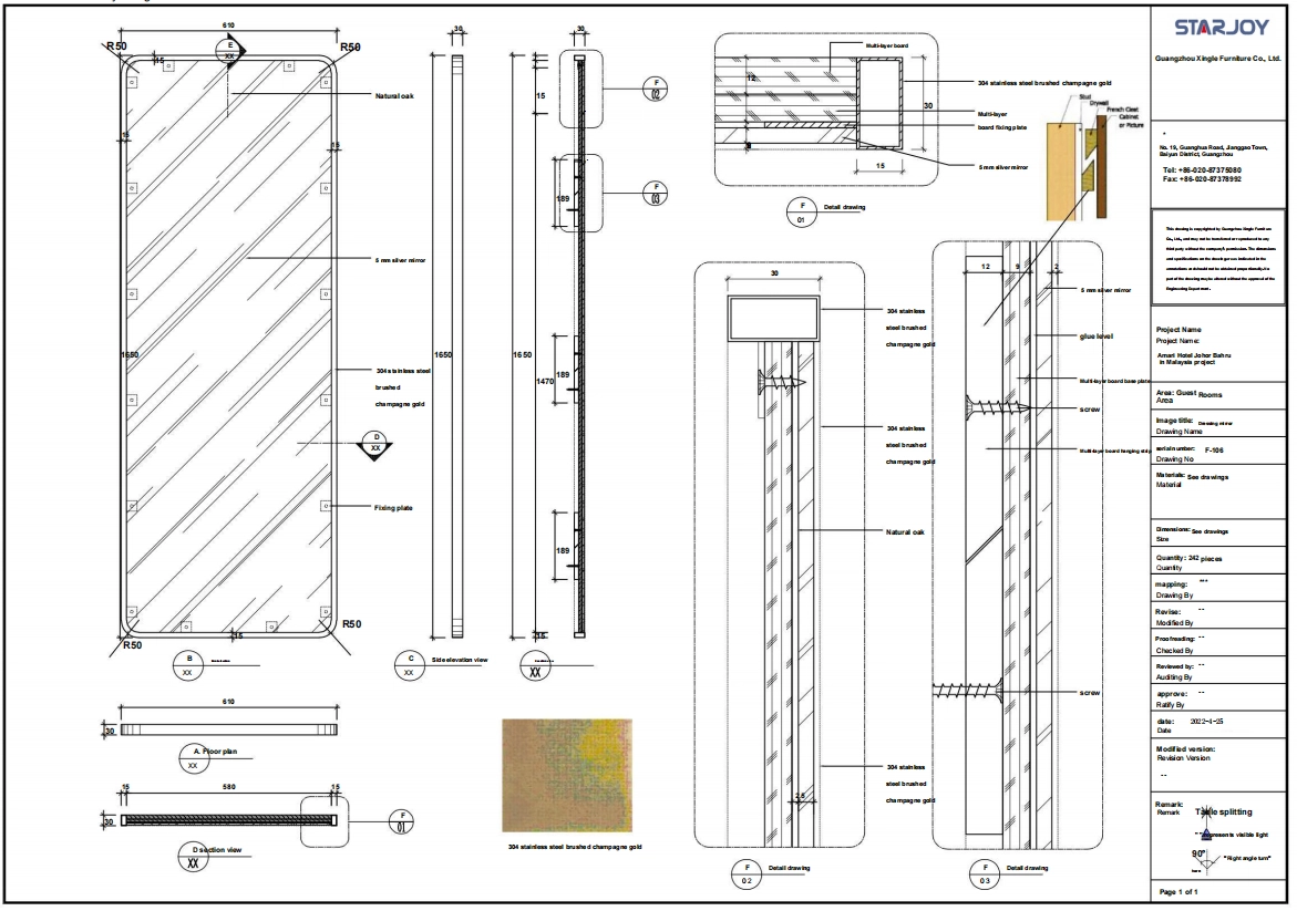
Drawings Analysis

Before production, drawing analysis is a key step to ensure the project can be executed accurately and efficiently. At this stage, our design and engineering teams review all drawings to confirm dimensions, structures, and functional requirements.

✩ Design & Layout Review
We evaluate room layouts, furniture proportions, and usage requirements to ensure the design is practical for hotel guestrooms and suitable for large-scale production.

✩ 3D Modeling & Technical Check
3D models are created to verify structure, installation feasibility, and coordination between different furniture pieces, helping identify potential issues in advance.

✩ Material & Detail Confirmation
Materials, finishes, and hardware are reviewed to ensure durability, visual consistency, and compliance with project standards.

 

Through this process, drawings are finalized and aligned with production requirements, reducing errors and ensuring a smooth transition into manufacturing.

Amari Hotel Johor Bahru in Malaysia project drawing
Amari Hotel Johor Bahru in Malaysia drawing
Amari Hotel Johor Bahru in Malaysia project
Amari Hotel Johor Bahru in Malaysia

02

Production after order confirmation 

Once all drawings and specifications are approved, production begins according to the finalized documents. Each furniture item is manufactured following standardized procedures to ensure consistency across all guestrooms.

✩ Precision Processing
Advanced CNC equipment is used for accurate cutting and machining, ensuring uniform dimensions and clean edges for batch production.

✩ Craftsmanship & Assembly
Both modern machinery and skilled manual techniques are applied, especially for detailed or curved components, to achieve reliable structure and refined finishes.

✩ Pre-Production Verification
Before full-scale manufacturing, key components are checked against approved drawings to ensure full compliance with design and quality standards.

This controlled production process ensures that all furniture meets functional requirements while maintaining consistent quality throughout the project.

Pre-assembly

03

Packaging and Delivery

After production, all finished furniture is systematically organized and prepared for delivery. As shown in the image, completed items are carefully packed in reinforced cartons, stacked in uniform batches, and placed on wooden pallets to ensure stability during handling and transportation. This palletized packaging method improves loading efficiency while minimizing movement and potential damage during transit.

 

Each package is protected with multiple layers, including internal foam padding, edge protection, and secure wrapping, to safeguard surfaces and structural components. Clear labels are applied to every unit, indicating product details, quantities, and installation sequences, allowing clear identification upon arrival at the project site.

 

Before dispatch, all packaged furniture is arranged in designated loading areas according to the delivery schedule. This organized staging process ensures efficient forklift handling, optimized container loading, and smooth coordination with logistics partners. Through careful packaging control and planned delivery management, the furniture is shipped in good condition, on time, and fully prepared for seamless on-site installation.

 

 

package

Product becomes a reality 

For this hotel project, we turned the approved design into finished furniture tailored for Amari Hotel Johor Bahru. Through careful material selection and precise manufacturing, the final products balance clean aesthetics with durability, delivering a seamless transition from design concept to real hotel spaces.

Hotel room with two beds, a TV, a desk, and neutral decor.
Hotel room with two twin beds, modern decor, and city view.
Hotel suite with a bedroom separated from a living area by a sliding wood door.
Hotel room with king-size bed, chaise lounge, desk, and patterned carpet.
Hotel room with king bed, decorative headboard, and purple chaise lounge.
Elegant hotel lobby with seating areas, decorative walls, and a pastry display.
Hotel room with a king bed, desk, balcony, and city view.
Hotel room
Hotel bedroom

Customized Service

Demand discussion
1. Needs Analysis
Have a preliminary meeting with the customer to understand their needs, style preferences and functional requirements.
Engineering drawings & 3D Rending
2. Drawing and Rendering
Conduct detailed drawing analysis and draw renderings so that customers can intuitively see the effect of the furniture in the space and provide feedback
Confirmation
3. Confirmation
Confirm the order details, including quantity, material, color and delivery time, and sign the contract.
Production
4. Production
Based on the confirmed order, start the production process to ensure that each link meets the design standards.
Installation guidance
5. Installation and After-Sales Service
Provide professional installation services to ensure that the furniture is placed and used correctly.
Tags

Explore more success stories

The One Nai Harn apartment in Phuket, Thailand.

The One Nai Harn Apartment project in Phuket, Thailand

In February 2026, Starjoy successfully completed a large-scale furniture supply project for The One Nai Harn Apartment in Phuket, Thailand. This project was delivered on time, with high-quality, custom furniture designed to withstand the tropical climate. Our team ensured smooth coordination from production to installation, meeting both aesthetic and functional requirements. This project highlights our ability to handle large international orders with precision and efficiency.

The One Nai Harn Apartment project in Phuket, Thailand
Wyndham Hotel in Massachusetts,USA

Starjoy Hotel Furniture for Wyndham Hotels in Massachusetts, USA

In February 2026, Starjoy successfully completed a 1,304-set custom hotel furniture project for a Wyndham hotel in Massachusetts, USA. The project covered guestroom beds, ottomans, bedside cupboards, desks, TV cabinets, coffee tables, wardrobes, bathroom vanities, and sofas—delivered with full compliance to U.S. quality standards and on-time execution. It is covering key functional areas of guest rooms and public spaces.

This project demonstrates our capability as an international hotel furniture manufacturer to meet North American market standards while ensuring design consistency, structural durability, and large-volume production efficiency.

Starjoy Hotel Furniture for Wyndham Hotels in Massachusetts, USA
Homewood Suites by Hilton Custom Furniture Project (3)

Homewood Suites by Hilton Custom Furniture Project

We were excited to work with Homewood Suites by Hilton in Toronto, Canada, on a comprehensive custom furniture project tailored for their extended-stay suites. The objective was to create functional, stylish, and space-efficient furniture that enhanced the suite experience while ensuring comfort for long-term guests.

Homewood Suites by Hilton Custom Furniture Project
Hampton by Hilton

Malaysia Hampton by Hilton Custom Furniture Project

We were privileged to partner with Hampton by Hilton in Kuala Lumpur, Malaysia, for a large-scale custom furniture project. The hotel sought to provide guests with a welcoming, modern environment while upholding the brand’s emphasis on comfort and durability. 

Malaysia Hampton by Hilton Custom Furniture Project

Get Hotel Furniture Customization Solution

We strive to provide the most thoughtful service, excellent quality and value to every customer who customizes hotel furniture from STARJOY.

If you have any questions about your order, please contact us.

Name must not exceed 100 characters.
Invalid email format or length exceeds 100 characters. Please re-enter.
Please enter a valid phone number!
Company must not exceed 150 characters.
Please select Project Type
Content must not exceed 3000 characters.

Rest assured that your privacy is important to us, and all information provided will be handled with the utmost confidentiality.

Contact customer service

Send My Request

Hi,
If you are interested in our hotel public area, guest room or building venues, please send me a message for the best quote and product information.

×
Name must not exceed 100 characters.
Invalid email format or length exceeds 100 characters. Please re-enter.
Please enter a valid phone number!
Company must not exceed 150 characters.
Please select Project Type
Content must not exceed 3000 characters.