Aurea Hotel Perth Kings Park, Australia

Starjoy Hotel Furniture for Aurea Hotel Perth Kings Park, Australia

We successfully delivered a full set of high-quality custom hotel furniture solutions for the Aurea Hotel Perth Kings Park project in Australia. Our collaboration with the hotel led to the successful installation of 71 furniture sets in October 2022, with an additional 25 sets delivered in 2024 for a partial refurbishment. Our focus on craftsmanship and efficient delivery ensured the success of this collaboration, which contributed to a refreshed and sophisticated guest experience. Learn how our customized furniture transformed the hotel's guest experience and supported their operational needs.

Perth, Australia.
Date: Monday, October 31, 2022
Product: beds, chair, round table,wardrobe,bedside cupboard,cabinet,sofa bed
QTY: 96 sets
Get free design guide

01

Drawings Analysis

  •  
  • Before we proceed with production, our design team ensures that every aspect of the project is carefully reviewed and refined through detailed drawings.

  •  
  • We start by evaluating the space dimensions and layout to ensure that the furniture fits perfectly and meets the project’s specifications. The furniture placement is analyzed to optimize space usage, ensuring that the flow and accessibility of the space are not compromised. We also take into account practical factors like comfort and ease of movement for both the guests and staff.

  •  
  • Next, we conduct a design review with the client, confirming that the design aligns with their vision and requirements. This step involves discussing any potential changes or improvements, allowing us to fine-tune the design before finalizing the drawings. The visual aesthetics are also carefully assessed to ensure that the colors, materials, and finishes match the overall theme of the space and create the desired atmosphere.

  •  
  • Once the client approves the final drawings, we proceed to the production phase, confident that all design details have been meticulously considered and the project will meet the client’s expectations.

drawing analyzes 1
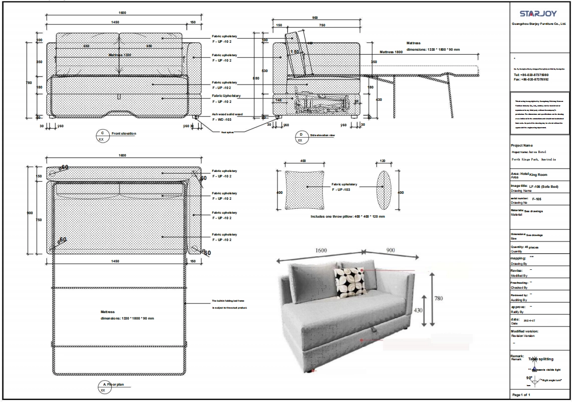
Sofa bed technical drawing with dimensions and a rendered image 2
Technical drawing of a round table with dimensions, materials, and construction details. 3
Technical drawing of a low cabinet with detailed views and specifications. 4
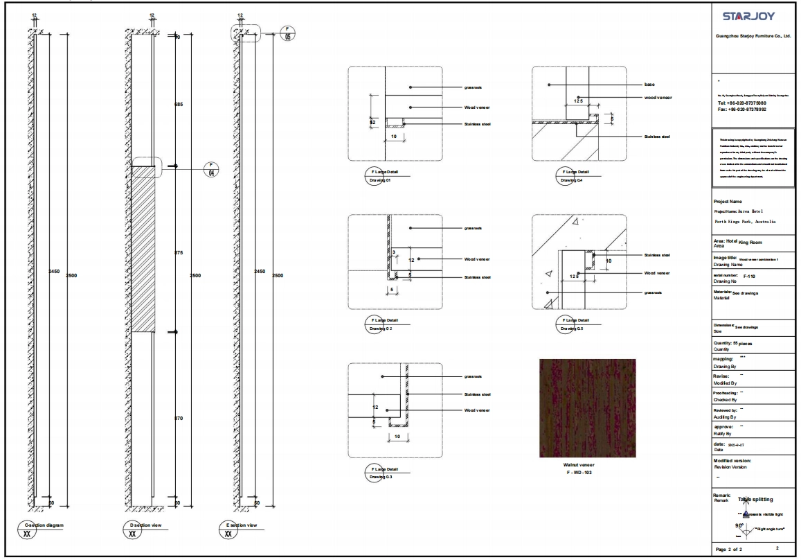
Architectural drawing of a hotel king room, detailing furniture and material specifications. 5
Architectural drawing showing wall sections, material details, and project information. 6

02

Production After Order Confirmation

Once the final design drawings are approved by the client, we move forward with the production phase. Our production process is built to ensure efficiency, consistency, and quality in every piece of furniture.

 

We begin by sourcing the highest quality materials based on the approved design. We use advanced machinery, such as CNC equipment, to ensure precise cuts and perfect finishes for each item. The production team carefully monitors each stage of the process to guarantee that all specifications are met. This involves detailed checks for the strength and durability of the materials used, ensuring that they will withstand the demands of high-traffic hotel environments.

 

Throughout the production phase, skilled craftsmen add their expertise to the process, especially when it comes to intricate details or custom requests from the client. We also conduct regular quality control checks to ensure that all furniture pieces meet both aesthetic and functional standards.

 

Our goal is to produce furniture that not only aligns with the client’s vision but also exceeds expectations in terms of durability and craftsmanship. We take every step to ensure that production is completed on time, so the furniture is ready for delivery as planned.

Precision Manufacturing

03

Packaging and Delivery 

Once the furniture is produced, we focus on ensuring its safe and timely delivery to the hotel. We take great care in packaging each piece to protect it from damage during transit, ensuring that it arrives at the destination in pristine condition.

 

We use high-quality, durable packaging materials tailored to the specific requirements of the furniture. For example, moisture-resistant wraps are used to prevent damage from humidity, while reinforced corner protectors safeguard delicate edges. The packaging is designed to be efficient, minimizing wasted space while maximizing protection for the furniture.

 

Our logistics team coordinates closely with shipping partners to ensure that the furniture is delivered on schedule. We track the shipment throughout the journey, ensuring that any potential delays are swiftly addressed. Timely delivery is crucial to ensuring that the installation process proceeds as planned, and the hotel can open or refurbish without unnecessary delays.

 

Upon arrival at the hotel site, our installation team is ready to handle the assembly and setup. They ensure that all furniture is properly positioned and that the installation is completed smoothly. The team works closely with the hotel’s management to ensure the setup meets their exact requirements, helping them achieve their operational goals without any issues.

Packaging

Product becomes a reality 

Once installed, the furniture seamlessly transformed the hotel spaces. Each piece was carefully positioned to enhance the overall design, creating a welcoming and comfortable environment for guests. The result was a harmonious blend of style and functionality, elevating the hotel's aesthetic while providing a high-quality experience for all visitors.

Aurea Hotel Perth Kings Park lobby with reception desk, lounge seating, and modern decor.
Lobby with brown sofas, green cushions, glass tables, and a view of trees and cars outside.
Twin beds in a hotel room with a beach mural, wardrobe, and modern decor.
Modern hotel room with a large bed, beach mural, open closet, and bathroom entrance.
Two single beds in a hotel room with a beach mural above the headboards.
Twin bedroom with ocean mural, balcony overlooking trees.
Modern living room with a white sectional sofa, black coffee table, and TV.
Twin beds in a modern hotel room with beach mural, large window, and TV.
Modern hotel room with a large bed, beach mural, and window.

Customized Service

Demand discussion
1. Needs Analysis
Have a preliminary meeting with the customer to understand their needs, style preferences and functional requirements.
Engineering drawings & 3D Rending
2. Drawing and Rendering
Conduct detailed drawing analysis and draw renderings so that customers can intuitively see the effect of the furniture in the space and provide feedback
Confirmation
3. Confirmation
Confirm the order details, including quantity, material, color and delivery time, and sign the contract.
Production
4. Production
Based on the confirmed order, start the production process to ensure that each link meets the design standards.
Installation guidance
5. Installation and After-Sales Service
Provide professional installation services to ensure that the furniture is placed and used correctly.
Tags

Explore more success stories

The One Nai Harn apartment in Phuket, Thailand.

The One Nai Harn Apartment project in Phuket, Thailand

In February 2026, Starjoy successfully completed a large-scale furniture supply project for The One Nai Harn Apartment in Phuket, Thailand. This project was delivered on time, with high-quality, custom furniture designed to withstand the tropical climate. Our team ensured smooth coordination from production to installation, meeting both aesthetic and functional requirements. This project highlights our ability to handle large international orders with precision and efficiency.

The One Nai Harn Apartment project in Phuket, Thailand
Wyndham Hotel in Massachusetts,USA

Starjoy Hotel Furniture for Wyndham Hotels in Massachusetts, USA

In February 2026, Starjoy successfully completed a 1,304-set custom hotel furniture project for a Wyndham hotel in Massachusetts, USA. The project covered guestroom beds, ottomans, bedside cupboards, desks, TV cabinets, coffee tables, wardrobes, bathroom vanities, and sofas—delivered with full compliance to U.S. quality standards and on-time execution. It is covering key functional areas of guest rooms and public spaces.

This project demonstrates our capability as an international hotel furniture manufacturer to meet North American market standards while ensuring design consistency, structural durability, and large-volume production efficiency.

Starjoy Hotel Furniture for Wyndham Hotels in Massachusetts, USA
Homewood Suites by Hilton Custom Furniture Project (3)

Homewood Suites by Hilton Custom Furniture Project

We were excited to work with Homewood Suites by Hilton in Toronto, Canada, on a comprehensive custom furniture project tailored for their extended-stay suites. The objective was to create functional, stylish, and space-efficient furniture that enhanced the suite experience while ensuring comfort for long-term guests.

Homewood Suites by Hilton Custom Furniture Project
Hampton by Hilton

Malaysia Hampton by Hilton Custom Furniture Project

We were privileged to partner with Hampton by Hilton in Kuala Lumpur, Malaysia, for a large-scale custom furniture project. The hotel sought to provide guests with a welcoming, modern environment while upholding the brand’s emphasis on comfort and durability. 

Malaysia Hampton by Hilton Custom Furniture Project

Get Hotel Furniture Customization Solution

We strive to provide the most thoughtful service, excellent quality and value to every customer who customizes hotel furniture from STARJOY.

If you have any questions about your order, please contact us.

Name must not exceed 100 characters.
Invalid email format or length exceeds 100 characters. Please re-enter.
Please enter a valid phone number!
Company must not exceed 150 characters.
Please select Project Type
Content must not exceed 3000 characters.

Rest assured that your privacy is important to us, and all information provided will be handled with the utmost confidentiality.

Contact customer service

Send My Request

Hi,
If you are interested in our hotel public area, guest room or building venues, please send me a message for the best quote and product information.

×
Name must not exceed 100 characters.
Invalid email format or length exceeds 100 characters. Please re-enter.
Please enter a valid phone number!
Company must not exceed 150 characters.
Please select Project Type
Content must not exceed 3000 characters.