Wyndham Grand Zhaoqing Downtown, China

Starjoy Hotel Furniture Project for Wyndham Grand Zhaoqing Downtown, China

We were pleased to collaborate with Wyndham Grand Zhaoqing Downtown, China, on a large-scale hotel furniture project. The process took several months, from conceptual design to final delivery. Our goal was to provide custom-made, high-quality furniture pieces that aligned with the hotel’s luxurious standards, ensuring comfort and durability throughout the property.

Zhaoqing, China
Date: Monday, August 15, 2022
Product: modular beds, chair, table, wardrobe,bedside table,cabinet,sofa and desk
QTY: 630 sets
Get free design guide

01

Drawings Analysis

Before moving forward with production, our design team conducts a thorough analysis of the finalized drawings to ensure that every detail is aligned with the project’s vision.

Client Collaboration: We engage in detailed discussions with the client to understand their design preferences and functional needs for the space. This ensures that all design elements match the hotel's aesthetic and operational goals.

 

  • ✩ Space Evaluation: We assess the layout and dimensions of the space to determine how the furniture will fit. Special attention is given to room flow, accessibility, and maximizing space while keeping comfort in mind.
  •  
  • Material Selection: The materials used for the project are carefully chosen based on both functionality and aesthetic requirements. We work with the client to select materials that complement the hotel’s interior design, ensuring longevity and durability.
  •  
  • Final Design Review: After incorporating all feedback, we present the finalized design for client approval. Once approved, the design is transitioned into production, ensuring that the vision comes to life.
Technical drawing 1
Technical drawing  5
Technical drawing  3
Technical drawing  4
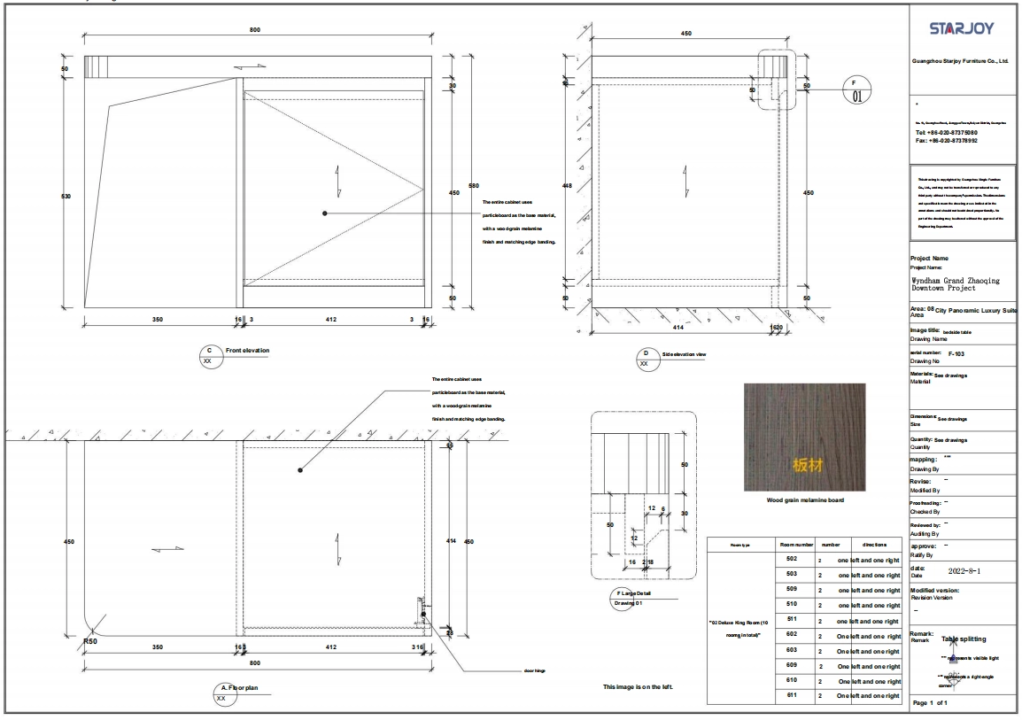
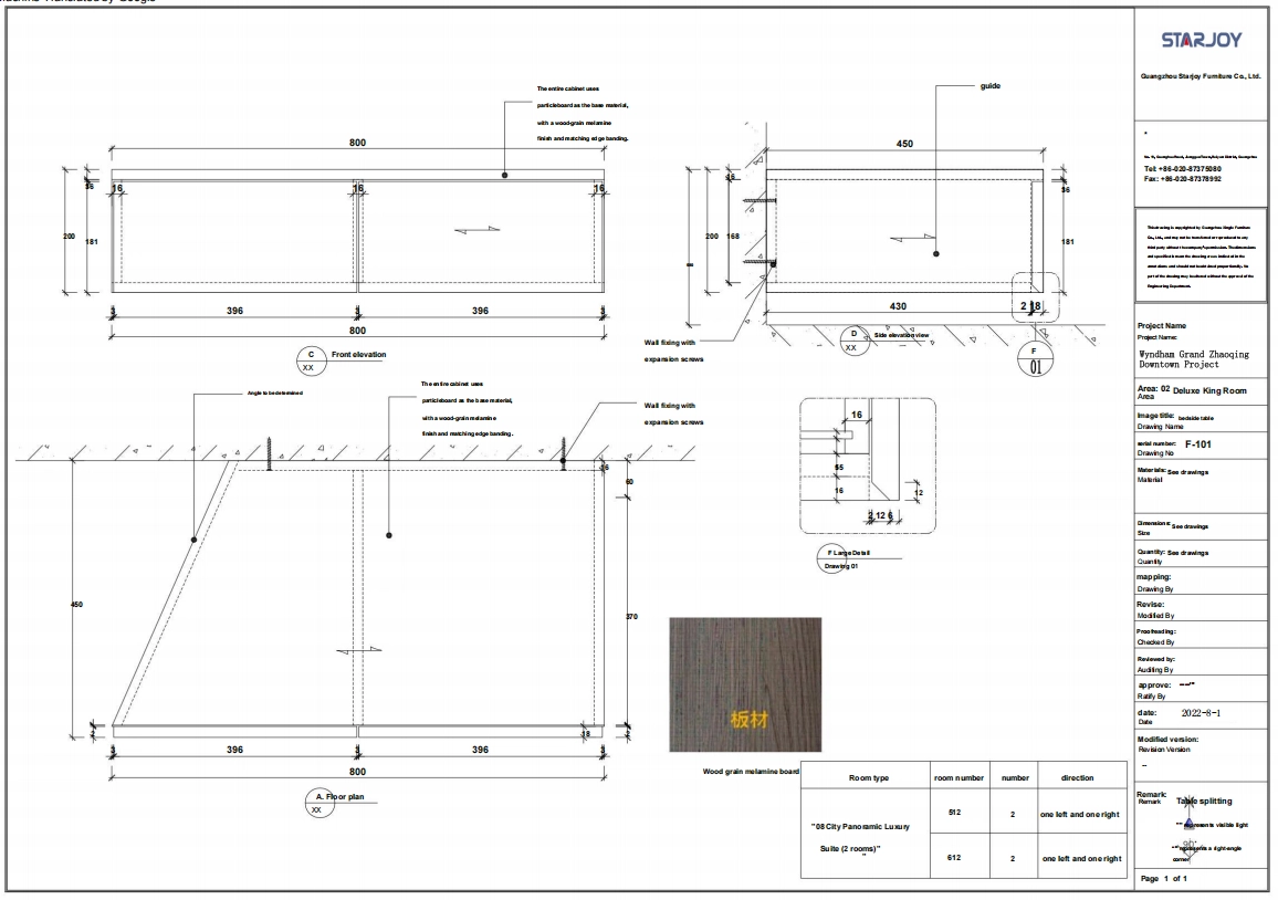
Architectural drawing of a bedside table with dimensions and material specifications. 2

02

Production after order confirmation

Once the final design is approved, production begins. Our process ensures that the furniture is manufactured to exact specifications, providing both durability and style.

  • Material Procurement: We source high-quality materials that meet both the client’s aesthetic and durability requirements. This step ensures that each piece of furniture is built to last, even in high-traffic hotel environments.
  •  
  • Precision Manufacturing: Using advanced machinery and skilled craftsmanship, each piece is manufactured to the exact design specifications. This includes precision cutting and shaping of materials to achieve perfect dimensions and a flawless finish.
  •  
  • Quality Control: Every piece of furniture undergoes rigorous quality checks to ensure that it meets both our internal standards and the client’s expectations. We ensure that the furniture is not only visually appealing but also durable enough for heavy use.
  •  
  • Timely Completion: We work closely with our production team to ensure that the furniture is completed on time, allowing us to adhere to the delivery schedule and meet the client’s opening date.
Chair bottom cutting

03

Packaging and Delivery

The final phase of the process is focused on ensuring safe and timely delivery of the furniture to the hotel.

  • Custom Packaging Solutions: We design packaging tailored to each item, ensuring that delicate pieces are protected during transit. For large and fragile furniture, special materials are used to prevent any damage.
  •  
  • Logistics Coordination: We coordinate with trusted logistics partners to ensure timely delivery, making sure the furniture arrives in perfect condition. This includes handling international shipping regulations and addressing any potential delays.
  •  
  • Installation and Setup: Upon arrival at the hotel, our professional installation team takes over to ensure the furniture is assembled and positioned according to the design. The team works closely with hotel management to ensure that the setup is completed efficiently and to the client’s satisfaction.
  •  
  • Seamless Transition: From production to delivery and installation, we ensure that the entire process is streamlined. The hotel spaces are fully furnished, ready for guest use, and aligned with the hotel’s operational goals.
Packaging and delivery

Product becomes a reality 

The project focused on creating custom furniture that perfectly balanced modern design with comfort. Our team meticulously selected high-quality materials to ensure durability while enhancing the aesthetic appeal. The goal was to create a seamless blend of style and functionality, with each piece crafted to meet the client’s specific vision. The final result was a collection of elegant, durable furniture that not only complemented the hotel’s interior design but also provided long-lasting comfort for its guests.

Spacious, modern hotel suite living room with light wood walls, gray sofas, and round chandelier.
Modern hotel room with a large bed, sofa, coffee table, and balcony access.
Spacious hotel room with two beds, a desk, and a city view from the large window.
Spacious hotel room with two beds, a sofa, a desk, and a large window with sheer curtains.
Modern hotel room with king bed, sofa, and glass-enclosed bathroom area.
Spacious modern hotel room with large bed, sofa, and a scenic window view.
Modern hotel room with king bed, sofa, TV, and large window.
Modern hotel room with two beds, a balcony overlooking the water, and a desk.
Modern hotel room with two beds, city view, sofa, and desk.
Modern hotel room with a large bed, seating area, and a window view of a lake and mountains.
Spacious hotel room with a large bed, sofa, desk, and a bright window.
Luxurious hotel suite with a king-size bed, sofa, armchair, and a view of the lake.

Customized Service

Demand discussion
1. Needs Analysis
Have a preliminary meeting with the customer to understand their needs, style preferences and functional requirements.
Engineering drawings & 3D Rending
2. Drawing and Rendering
Conduct detailed drawing analysis and draw renderings so that customers can intuitively see the effect of the furniture in the space and provide feedback
Confirmation
3. Confirmation
Confirm the order details, including quantity, material, color and delivery time, and sign the contract.
Production
4. Production
Based on the confirmed order, start the production process to ensure that each link meets the design standards.
Installation guidance
5. Installation and After-Sales Service
Provide professional installation services to ensure that the furniture is placed and used correctly.
Tags

Explore more success stories

The One Nai Harn apartment in Phuket, Thailand.

The One Nai Harn Apartment project in Phuket, Thailand

In February 2026, Starjoy successfully completed a large-scale furniture supply project for The One Nai Harn Apartment in Phuket, Thailand. This project was delivered on time, with high-quality, custom furniture designed to withstand the tropical climate. Our team ensured smooth coordination from production to installation, meeting both aesthetic and functional requirements. This project highlights our ability to handle large international orders with precision and efficiency.

The One Nai Harn Apartment project in Phuket, Thailand
Wyndham Hotel in Massachusetts,USA

Starjoy Hotel Furniture for Wyndham Hotels in Massachusetts, USA

In February 2026, Starjoy successfully completed a 1,304-set custom hotel furniture project for a Wyndham hotel in Massachusetts, USA. The project covered guestroom beds, ottomans, bedside cupboards, desks, TV cabinets, coffee tables, wardrobes, bathroom vanities, and sofas—delivered with full compliance to U.S. quality standards and on-time execution. It is covering key functional areas of guest rooms and public spaces.

This project demonstrates our capability as an international hotel furniture manufacturer to meet North American market standards while ensuring design consistency, structural durability, and large-volume production efficiency.

Starjoy Hotel Furniture for Wyndham Hotels in Massachusetts, USA
Homewood Suites by Hilton Custom Furniture Project (3)

Homewood Suites by Hilton Custom Furniture Project

We were excited to work with Homewood Suites by Hilton in Toronto, Canada, on a comprehensive custom furniture project tailored for their extended-stay suites. The objective was to create functional, stylish, and space-efficient furniture that enhanced the suite experience while ensuring comfort for long-term guests.

Homewood Suites by Hilton Custom Furniture Project
Hampton by Hilton

Malaysia Hampton by Hilton Custom Furniture Project

We were privileged to partner with Hampton by Hilton in Kuala Lumpur, Malaysia, for a large-scale custom furniture project. The hotel sought to provide guests with a welcoming, modern environment while upholding the brand’s emphasis on comfort and durability. 

Malaysia Hampton by Hilton Custom Furniture Project

Get Hotel Furniture Customization Solution

We strive to provide the most thoughtful service, excellent quality and value to every customer who customizes hotel furniture from STARJOY.

If you have any questions about your order, please contact us.

Name must not exceed 100 characters.
Invalid email format or length exceeds 100 characters. Please re-enter.
Please enter a valid phone number!
Company must not exceed 150 characters.
Please select Project Type
Content must not exceed 3000 characters.

Rest assured that your privacy is important to us, and all information provided will be handled with the utmost confidentiality.

Contact customer service

Send My Request

Hi,
If you are interested in our hotel public area, guest room or building venues, please send me a message for the best quote and product information.

×
Name must not exceed 100 characters.
Invalid email format or length exceeds 100 characters. Please re-enter.
Please enter a valid phone number!
Company must not exceed 150 characters.
Please select Project Type
Content must not exceed 3000 characters.